Vagány albi Újpesten
Hozzáadás a kedvencekhezÁttekintés
| Referencia kód: | ZIC06251102 |
|---|---|
| Ár: | 300 000 Ft |
| Ajánlat: | kiadó |
| Típus: | lakás - tégla |
| Elhelyezkedés: | IV. kerület |
| Alapterület: | 105 m2 |
| Szobák: | 2 |
| Félszobák: | 1 |
| Fűtés: | gáz-cirkó |
| Komfort: | duplakomfortos |
| Emelet: | 3 |
| Épület szintjei: | 3 |
| Bútorozás: | bútorozott |
| Parkolás: | garázs |
| Kilátás: | utcai |
| Cím: | Görgey Artúr utca |
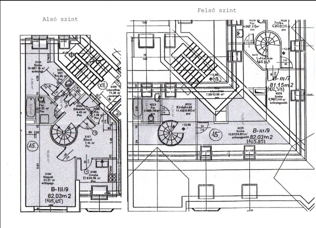
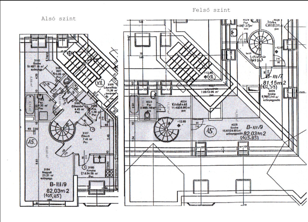
Újpest kertvárosias, nyugodt részén található ez az egyedi hangulatú, belső kétszintes lakás.
Igazi otthon, ahol minden részlet a kényelmet szolgálja!
Műszakilag és esztétikailag frissen felújított ingatlan. Lakberendező által megálmodott, modern és fiatalos enteriőr, a képen látható bútorokkal és felszereléssel, amely mind a leendő lakó kényelmét szolgálják.
Több irányba nyíló nagy ablakok, melyek révén a lakás reggeltől estig világos, napsütötte.
Beosztása ideális, az alsó szinten: előtér, hatalmas nappali, étkező, konyha, kamra, gázkazán, tároló, fürdőszoba + külön WC.
Az emeleten pedig: 1 nagy kényelmes szoba gardróbbal, fürdőszoba, belakható előtérrel és gardróbbal.
A költségek kedvezőek, kktg 27.000.- korlátlan vízfogyasztással, minden más pedig egyedi mérés alapján.
A lépcsőházban 2 külön személyes tároló és biciklitartó.
És tartozik a lakáshoz egy saját, 14m2 garázs is, amely igény szerint bérelhető (plusz 30.000ft), de az udvaron a parkolás ingyenes.
A lakás kiváló közlekedésű környéken található:
A 12-es és 14-es villamos megállója a ház előtt.
Lidl, OBI, JYSK, bevásárlóközpont pár perc távolságra
Nyugodt környezet, barátságos szomszédság.
Tökéletes választás családnak, pároknak, akik tágas, kényelmes és otthonos lakást keresnek hosszú távra.
VIDEÓ:





















