Kertkapcsolatos-nagy teraszos lakás
Hozzáadás a kedvencekhezÁttekintés
| Referencia kód: | ZIC06140904 |
|---|---|
| Ár: | 25.75 millió Ft |
| Ajánlat: | ELADVA |
| Típus: | lakás - tégla |
| Elhelyezkedés: | Alsórákos |
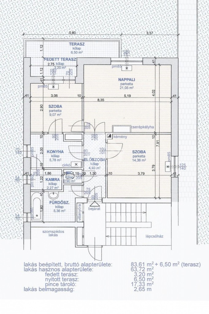
| Alapterület: | 68 m2 |
| Állapot: | jó állapotú |
| Szobák: | 2 |
| Félszobák: | 1 |
| Fűtés: | gáz-konvektor |
| Komfort: | összkomfortos |
| Emelet: | félemelet |
| Épület szintjei: | 2 |
| Építés éve: | 1960 |
| Épület lakás száma: | 4 |
| Terasz: | 7 m2 |
| Parkolás: | telken parkoló |
| Kilátás: | kertre néző |
| Cím: | Tihamér utcánál |
Zugló legkeresettebb kertvárosi részén, a Tihamér utcánál található ez a jó adottságokkal rendelkező ingatlan egy kulturált, kevés lakásos, családias hangulatú házban.
Beosztása ideális, a tágas szobák, a nappali és a konyha külön nyílnak. Ám igény esetén a belső válaszfalak eltávolíthatóak és egybefüggő belső tér (loftos jelleggel) is kialakítható.
A lakás szép napos, az ablakok és a terasz a ház saját, szépen ápolt kertjére tekintenek. A nagyméretű teraszról akár lejáró is kiépíthető a kertbe, amely igény esetén le is választható. Így saját kertrész alakítható ki, amely ritka privilégium!
A kert egyébként tökéletes helyszín napozni, pihenni vagy akár játszani a gyerekekkel..
A lakás megkímélt állapotú, új hőszigetelt nyílászárókkal, de egy esztétikai felújítás indokolt.
Az ingatlanhoz két nagy területű, saját használatú ablakos pince tartozik. Itt akár klubhelyiség, edzőterem, stb. kialakítható.
A környék amellett, hogy zöldövezeti és nyugodt egyben frekventált is. Az Örs Vezér tere mindössze 5 perc séta. Itt számos BKV járat, bevásárlóközpontok, mozi és rengeteg egyéb szolgáltatás elérhető!
Zugló ezen kiemelt részén ritka lehetőség lakáshoz jutni.
Ne szalassza el a lehetőséget!
Egyéb felszereltségek, tudnivalók
- 4 lakásos ház
- csendes kertvárosi környezet
- kelet-dél-nyugati tájolás
- kertkapcsolat
- kiváló tömegközlekedés
- nagy terasz
Térkép
Címkék
földszinti lakás eladó, kertkapcsolatos lakás eladó, nagy teraszos lakás, nagy teraszos lakás eladó, teraszos lakás Zuglóban eladó, Zuglóban eladó lakás, Zuglóban kertkapcsolatos lakás eladó, Zuglóban téglalakás eladó



















