Új építésű duplex lakás 3 nagy terasszal
Hozzáadás a kedvencekhezÁttekintés
| Referencia kód: | ZIC06150345 |
|---|---|
| Ár: | 33 millió Ft |
| Ajánlat: | ELADVA |
| Típus: | lakás - tégla |
| Elhelyezkedés: | Herminamező |
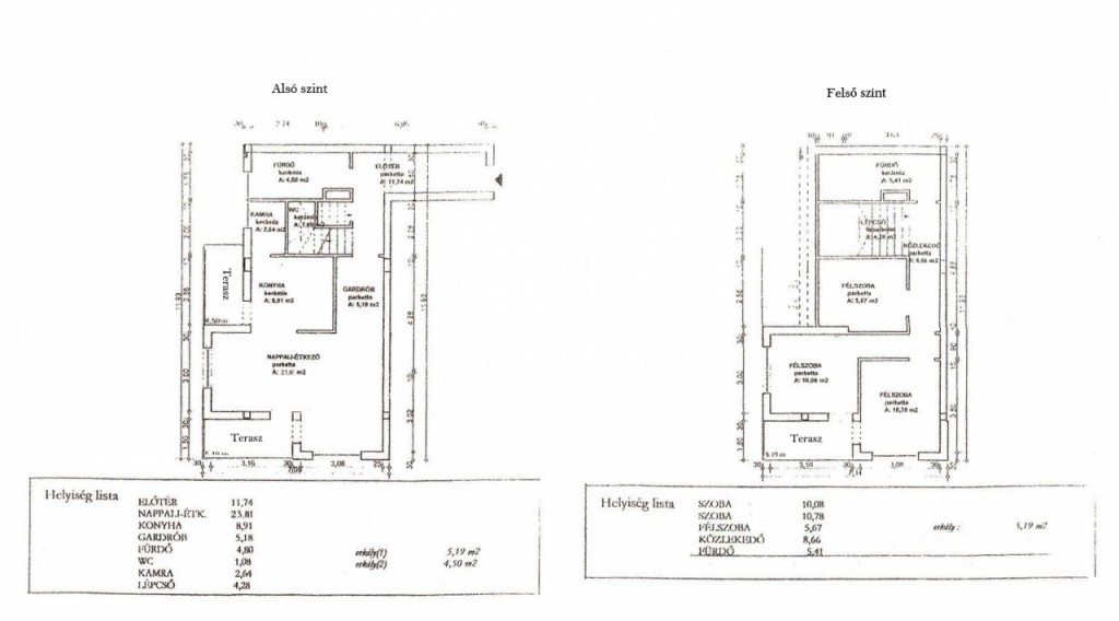
| Alapterület: | 100 m2 |
| Állapot: | újépítésű |
| Szobák: | 2 |
| Félszobák: | 2 |
| Komfort: | duplakomfortos |
| Emelet: | 3 |
| Épület szintjei: | 3 |
| Építés éve: | 2006 |
| Erkély: | 5.19 m2 |
| Erkély (#2): | 4.5 m2 |
| Erkély (#3): | 5.16 m2 |
| Parkolás: | garázs |
| Kilátás: | panorámás |
| Cím: | Herminamező |
Zugló zöldövezeti ám mégis frekventált részén található ez a fantasztikus duplex (belső kétszintes) lakás egy új építésű, igényes társasházban.
A lakás igazi ritkaságnak számít a zuglói ingatlanpiacon. Alapterülete 100m2 plusz a 3 nagyméretű terasz, belső kétszintes (duplex) kialakítás, világos-napsütötte, igényes enteriőr.. Nem sok ilyen lakás van.
Az alsó szinten a kádas fürdőszoba mellett található az amerikai konyhás nappali, ahol a gépesített konyha minden igényt kielégít. A hatalmas tolóajtó segítségével gyakorlatilag egybenyithatjuk a lakást a 2 nagyméretű terasszal, melynek előnyeit így tavasztól őszig élvezhetjük. Családi-baráti összejövetelek, étkezések, barbecue parti, de akár napozás, olvasás, relaxálás.. Egy igazi paradicsom!
Tömörfa lépcsőn juthatunk a felső szintre, ahol a 3 hálószoba mellett kádas fürdőszoba és nem utolsó sorban még egy terasz található. Az emelet tökéletes helyszín a privát szférának, ha lent zajlik is az élet, itt nyugodtan pihenhet-dolgozhat.
A lakás kelet-dél-nyugati tájolásának köszönhetően minden napszakban világos, napsütötte. A nagy teraszok a ház kertjére és a környező kertvárosi rész felé tekintenek. Itt tökéletes a nyugalom, a lakás egész nap békés, csendes.
Az enteriőr igazán igényes, a minőségi burkolatok színben és stílusban is összhangot alkotnak. A lakás akár egyből költözhető! Nagy előny még, hogy mindkét szint klimatizált.
Valamint tartozik a lakáshoz egy külön zárható, 18m2 tároló!
Az automatizált garázsban található autóbeálló a vételáron felül plusz 2M Forintba kerül, megvásárlása nem kötelező.
A környék amellett, hogy csendes zöldövezeti egyben frekventált is, számos BKV járat (pl. 62-69 villamos, 5 busz) 1 perc sétával megközelíthető.
Az ingatlan kiemelt érdeklődésre számíthat.
Ha késlekedik, könnyen lemaradhat róla!
Egyéb felszereltségek, tudnivalók
- 18 m2 tároló
- 3 erkélyes lakás
- autóbeálló
Térkép
Címkék
duplex lakás Zuglóban eladó, Herminamezőn duplex lakás eladó, teraszos zuglói lakás eladó, új építés, új építésű zuglói lakás eladó
















