Hangulatos és igényes zöldövezeti ház
Hozzáadás a kedvencekhezÁttekintés
| Referencia kód: | ZIC06150715 |
|---|---|
| Ár: | 40 millió Ft |
| Ajánlat: | ELADVA |
| Típus: | ház - sorház |
| Elhelyezkedés: | Alsórákos |
| Alapterület: | 136 m2 |
| Állapot: | jó állapotú |
| Szobák: | 4 |
| Fűtés: | gáz-cirkó |
| Komfort: | duplakomfortos |
| Épület szintjei: | 2 |
| Épület lakás száma: | 1 |
| Bútorozás: | bútorozatlan |
| Telek: | 277 m2 |
| Terasz: | 16 m2 |
| Parkolás: | garázs |
| Kilátás: | kertre néző |
| Cím: | Alsórákos |
Zugló kertvárosi ám mégis frekventált részén, a Mogyoródi út egyik csendes mellékutcájában található ez a 2010-ben teljeskörűen felújított ingatlan.
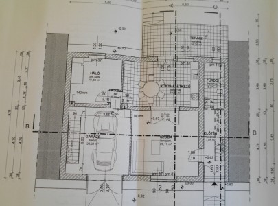
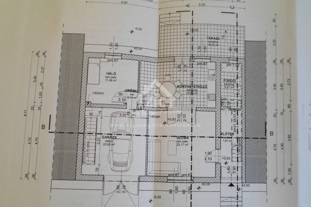
Az előkerten keresztül egy igazán hangulatos házba jutunk. Az alsó szinten található a tágas nappali, étkezős konyha, fürdőszoba és egy hálószoba, valamint egy hatalmas terasz és a privát hátsó kert. Ez kialakításából adódóan rejtve van a tekintetektől, kiváló helyszín napozni, játszani a gyerkőcökkel vagy akár garden partit rendezni.
A felújítás során a tetőtér is beépítésre került, itt található két hatalmas szoba (jelenleg az ifjúsági szekció) és egy sarokkádas fürdőszoba. A ház pár apró simítástól eltekintve tökéletes állapotban van. A ház lakóterülete bruttó 154, nettó 118m2, valamint 16m2 terasz, 20m2 tároló és 21m2 garázs.
A felújítás során a falak tégláig le lettek csupaszítva, minden vezeték, cső és burkolat vadonat új, még a tető is! A felhasznált anyagok igényesek és harmonizálnak egymással. A végeredmény egy nagyon vidám hangulatú és szerethető otthon lett.
Kelet-nyugati tájolásának köszönhetően ráadásul egész nap világos, napsütötte.
A ház csendes utcában van, szuper játszótér, óvoda és több BKV járat is a közvetlen közelben található.
Ha ismeri az ingatlanpiacot Ön is láthatja, ez a ház ilyen vételáron igazán kiváló ajánlat.
Ne szalassza el!
Egyéb felszereltségek, tudnivalók
- duplakomfort
- előkert
- frekventált elhelyezkedés
- garázs
- hatalmas szobák
- nagy pince
- remek beosztás
- szuper hátsó kert
Térkép
Címkék
Alsórákos eladó sorház, Alsórákos kertes ház eladó, kertes ház eladó, kertes ház eladó Zuglóban, Sorház eladó, Zuglóban kertes sorház eladó, Zuglói sorház elladó



















