Nagy alapterületű, két nagy teraszos álomlakás Herminamező szívében
Hozzáadás a kedvencekhezÁttekintés
| Referencia kód: | ZIC06141044 |
|---|---|
| Ár: | 60 millió Ft |
| Ajánlat: | ELADVA |
| Típus: | lakás - tégla |
| Elhelyezkedés: | Herminamező |
| Alapterület: | 158 m2 |
| Állapot: | újszerű |
| Szobák: | 5 |
| Fűtés: | gáz-cirkó |
| Komfort: | összkomfortos |
| Emelet: | 2 |
| Épület szintjei: | 2 |
| Építés éve: | 2004 |
| Épület lakás száma: | 5 |
| Terasz: | 10 m2 |
| Terasz (#3): | 10 m2 |
| Parkolás: | telken parkoló |
| Kilátás: | kertre néző |
| Cím: | Gyarmat utca |
Zugló kiemelt zöldövezeti részén, a Gyarmat utca környékén található ez a pár éve szintráépítéssel épült, kivételes lakás egy mindössze 5 lakásos, családias hangulatú házban. A legfelső emelet maga a lakás, egy külön birodalom. Egyedülálló a maga nemében, a kerületben jelenleg nem kapható hasonlóan nagy alapterületű és egyéb ilyen kvalitásokkal rendelkező ingatlan!
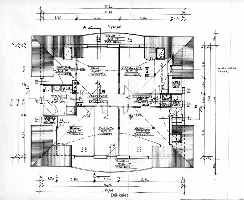
Beosztása optimális, az étkezős konyha mellett, 4 nagy szoba, 2 öltözőszoba, kádas fürdőszoba valamint még egy külön kézmosóval ellátott mellékhelyiség. Így a lakás lehetőséget ad társasági eseményekre éppúgy, mint a privát magánéletre. A belső falak szabadon mozgathatóak, így az enteriőr változatosan alakítható, akár loft lakássá is.. Az ingatlan kiemelt minőségű anyagok felhasználásával épült, erről tanúskodik az „A” kategóriás energetikai tanúsítvány.
Mindegyik helyiségben nagyméretű ablakok találhatóak, melyek minden égtáj felé nyílnak, így a lakás egész nap világos és vidám hangulatú. A két terasz (10-10m2) dél-kelet és nyugati tájolásúak, így bármely napszakban lehetőség van élvezni a jó időt, de a teraszok tökéletes helyszín olvasni, relaxálni vagy akár barbecue partit adni barátainak..
Az előszobából nyíló feljárón keresztül a nagyméretű tetőtérbe jutunk, amely jelenleg tárolási célokat szolgál. De a felhasználási kör itt is rugalmas.
Érdemes még megemlíteni a ház saját kertjét, amely rengeteg lehetőséget rejt magában. Kényelmesen elfér pingpongasztal, trambulin, csúszda, homokozó és még bőven jut hely egyéb szabadidős tevékenységeknek is.
A lakáshoz tartozik még egy autóbeálló és saját pince is, melyek Zuglóban igazi kincsnek számítanak!
A környék ötvözi Zugló minden előnyét, csendes, hangulatos és zöldövezeti, sok szép történelmi épülettel. Több BKV járat (pl. 7es busz) mindössze 2 perc séta,a belváros rekord gyorsasággal megközelíthető! De emellett boltok, patika és minden szükséges infrastruktúra is a közvetlen közelben található.
Ilyen kiváló adottságokkal rendelkező ingatlanhoz jutni Zugló legkeresettebb részén ritka lehetőség és valószínűleg nem tart sokáig.
Ne maradjon le róla!
Egyéb felszereltségek, tudnivalók
- "A" energetikai besorolás
- alacsony rezsiköltségek
- csendes kertvárosi környezet
- kelet-dél-nyugati tájolás
- két hatalmas terasz
- kiváló tömegközlekedés
- tágas belső terek


























